
A North Shore Line train on the Shore Line Route is southbound in Winnetka in September 1954. This section was grade-separated in 1940, along with the adjacent Chicago & North Western tracks, following a series of pedestrian accidents. Harold L. Ickes, Secretary of the Interior under President Franklin D. Roosevelt, approved Federal aid that paid for part of this work, in a similar fashion to Chicago’s Initial System of Subways. Ickes had lived in the area for many years. The train is moving towards the photographer, and the front is blurred due to the shutter speed that had to be used, in the days when Kodachrome was ISO 10.
As part of my ongoing research for my upcoming North Shore Line book, I decided to read all the other books that are out there. Today’s post features one that may be obscure, but is still very important–The Winnetka Grade Separation Project by Robert L. Anderson. As this was a dissertation, and part of the work Anderson did to receive an engineering degree, I didn’t know what to expect.
I was pleasantly surprised to discover this highly professional, thorough report on one of the outstanding public works projects in the New Deal era. The project’s cost would equate to about $86m in today’s dollars, and was one of two major projects that received 45% federal government funding from the PWA (Public Works Administration), headed by Harold L. Ickes (1874-1952).
19th century railroads ran at ground level in the Chicagoland area, but as population increased, grade crossing accidents became more and more of a public safety issue. When Chicago was chosen by Congress as the site of the World’s Columbia Exposition in 1890, the City began making local railroads elevate their tracks. This grade separation movement continued on through the 20th century.
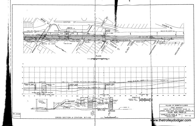
In the area covered by the Winnetka project, which to a lesser extent also involved the suburbs of Glencoe and Kenilworth, there were two railroads running parallel to each other– the Chicago & North Western, and the Chicago North Shore & Milwaukee (aka the North Shore Line).
This was the Shore Line Route, the interurban’s original route north from Wilmette, where it connected to the Chicago Rapid Transit Company “L” going downtown. The small space between the two train lines undoubtedly created a more dangerous situation than would otherwise have been the case.
The 1921 Plan of Winnetka, spearheaded by pioneer city planner Edward H. Bennett (1874-1954), recommended relocating the two sets of railroad tracks into an open cut. These plans continued to evolve until the late 1930s.
The Village of Winnetka applied for a grant from the PWA in 1938, and it was quickly approved. It did not hurt that FDR’s Secretary of the Interior (and thus, head of the PWA) Harold L. Ickes had been a former resident of Winnetka and therefore, knew there was a need.
Robert Landau Anderson (1906-1974), the author of this book, began working for Winnetka in 1929, and was appointed the head of Public Works in 1935, a position he held until his retirement in 1966. Anderson helped draft some of the plans, and was intimately involved with the project once it received federal approval. As Public Works chief, he helped oversee and coordinate much of the work, representing the village. At times, he also served as acting Village Manager.
He wrote this book in 1941 as his dissertation towards an engineering degree from Northwestern University. At that time, the project was largely complete, but was not 100% finished until 1943. His book is in the public domain, which we present here in full, and we are also including a magazine article he wrote in 1944, based on a presentation he gave for the Western Society of Engineers.
Both railroads were expected to kick in some portion of the cost for this project, but both were technically bankrupt at the time, as this was the Great Depression. The solution to this problem was quite creative.
Cost savings were estimated out for each railroad, based on the anticipated reductions in the need to maintain crossing signals. Bonds were issued in this amount, and immediately purchased by the PWA (in addition to their 45% share of the entire project cost). These were to be repurchased by the two railroads over a period of 30 years.
The North Shore Line abandoned the Shore Line Route in 1955, and the rest of the service went in 1963. At the time of abandonment, there still would have been an outstanding balance on the interurban’s share for a portion of these bonds, but I do not know how much money the government ultimately received.
The former North Shore Line right-of-way in Winnetka is now part of the recreational Green Bay Trail. Diesel replaced steam on the Chicago & North Western in 1956, and commuter rail service continues there today on Metra’s Union Pacific North Line between downtown Chicago and Kenosha.
Our scans were made from what may be the only remaining copy of this book, which is the best account of the Winnetka Grade Separation Project that I have found to date. I am glad we can now share this important history with you.
Sadly, Robert L. Anderson died from a heart attack in 1974, while on vacation in Montana with his wife. His dissertation earned him a Civil Engineering degree from Northwestern in 1941.
Interestingly, his younger brother James Stuart Anderson (1912-1954) was also an engineer, and also worked on the grade separation project as an employee of one of the firms that did the work.
It is entirely possible that this project influenced construction of the Congress Expressway (now I-290) through Oak Park and Forest Park in the late 1950s. After all, both projects involved relocating two sets of railroad tracks from ground level into an open cut, with trains leapfrogging from one set of temporary tracks to another.
-David Sadowski
PS- You might also like our Trolley Dodger Facebook auxiliary, a private group that now has 747 members.
Our friend Kenneth Gear now has a Facebook group for the Railroad Record Club. If you enjoy listening to audio recordings of classic railroad trains, whether steam, electric, or diesel, you might consider joining.
Work on our North Shore Line book is ongoing. Donations are needed in order to bring this to a successful conclusion. You will find donation links at the top and bottom of each post. We thank you in advance for your time and consideration.
Winnetka Grade Separation Project Video
Video segment from The Winnetka Story Documentary, produced by the Winnetka Historical Society:
The Winnetka Grade Separation Project by Robert L. Anderson

Between 1938 and 1943, the Winnetka Grade Separation Project eliminated several dangerous grade crossings along nearly four miles of trackage between Kenilworth and Glencoe. Two railroads were involved– the Chicago & North Western, and Chicago North Shore & Milwaukee (aka the North Shore Line).
Recent Correspondence
William Shapotkin writes:
This year’s Hoosier Traction Meet will take place Aug 19-20 in Dayton, OH. If you would please be so kind as to help us promote the event, it would be greatly appreciated.
We are glad to do so. You can download the prospectus by clicking on this link.
Keep those cards and letters coming in, folks.
-David Sadowski
A Guide to the Railroad Record Club E-Book

William A. Steventon recording the sounds of the North Shore Line in April 1956. (Kenneth Gear Collection)
Our good friend Ken Gear has been hard at work on collecting all things related to the late William Steventon’s railroad audio recordings and releases. The result is a new book on disc, A Guide To the Railroad Record Club. This was quite a project and labor of love on Ken’s part!
Kenneth Gear has written and compiled a complete history of William Steventon‘s Railroad Record Club, which issued 42 different LPs of steam, electric, and diesel railroad audio, beginning with its origins in 1953.
This “book on disc” format allows us to present not only a detailed history of the club and an updated account of Kenneth Gear’s purchase of the William Steventon estate, but it also includes audio files, photo scans and movie files. Virtually all the Railroad Record Club archive is gathered in one place!
Price: $19.99
$10 from the sale of each RRC E-Book will go to Kenneth Gear to repay him for some of his costs in saving this important history.
Now Available on Compact Disc:
RRC08D
Railroad Record Club #08 Deluxe Edition: Canadian National: Canadian Railroading in the Days of Steam, Recorded by Elwin Purington
The Complete Recording From the Original Master Tapes
Price: $15.99
Kenneth Gear‘s doggedness and determination resulted in his tracking down and purchasing the surviving RRC master tapes a few years back, and he has been hard at work having them digitized, at considerable personal expense, so that you and many others can enjoy them with today’s technology. We have already released a few RRC Rarities CDs from Ken’s collection.
When Ken heard the digitized version of RRC LP #08, Canadian National: Canadian Railroading in the Days of Steam, recorded by the late Elwin Purington, he was surprised to find the original tapes were more than twice the length of the 10″ LP. The resulting LP had been considerably edited down to the limited space available, 15 minutes per side.
The scenes were the same, but each was greatly shortened. Now, on compact disc, it is possible to present the full length recordings of this classic LP, which was one of Steventon’s best sellers and an all-around favorite, for the very first time.
Canadian National. Steaming giants pound high iron on mountain trails, rumble over trestles, hit torpedos and whistle for many road crossings. Mountain railroading with heavy power and lingering whistles! Includes locomotives 3566, 4301, 6013, 3560.
Total time – 72:57
$5 from the sale of RRC08D CD will go to Kenneth Gear to repay him for some of his costs in saving this important history.
Chicago’s Lost “L”s Online Presentation
We recently gave an online presentation about our book Chicago’s Lost “L”s for the Chicago Public Library, as part of their One Book, One Chicago series. You can watch it online by following this link.
The Trolley Dodger On the Air
We appeared on the Dave Plier Show on WGN radio on July 16, 2021, to discuss Chicago’s Lost “L”s. You can hear that discussion here.
Our Latest Book, Now Available:
Chicago’s Lost “L”s
From the back cover:
Chicago’s system of elevated railways, known locally as the “L,” has run continuously since 1892 and, like the city, has never stood still. It helped neighborhoods grow, brought their increasingly diverse populations together, and gave the famous Loop its name. But today’s system has changed radically over the years. Chicago’s Lost “L”s tells the story of former lines such as Garfield Park, Humboldt Park, Kenwood, Stockyards, Normal Park, Westchester, and Niles Center. It was once possible to take high-speed trains on the L directly to Aurora, Elgin, and Milwaukee, Wisconsin. The L started out as four different companies, two starting out using steam engines instead of electricity. Eventually, all four came together via the Union Loop. The L is more than a way of getting around. Its trains are a place where people meet and interact. Some say the best way to experience the city is via the L, with its second-story view. Chicago’s Lost “L”s is virtually a “secret history” of Chicago, and this is your ticket. David Sadowski grew up riding the L all over the city. He is the author of Chicago Trolleys and Building Chicago’s Subways and runs the online Trolley Dodger blog.
The Images of America series celebrates the history of neighborhoods, towns, and cities across the country. Using archival photographs, each title presents the distinctive stories from the past that shape the character of the community today. Arcadia is proud to play a part in the preservation of local heritage, making history available to all.
Title Chicago’s Lost “L”s
Images of America
Author David Sadowski
Edition illustrated
Publisher Arcadia Publishing (SC), 2021
ISBN 1467100007, 9781467100007
Length 128 pages
Chapters:
01. The South Side “L”
02. The Lake Street “L”
03. The Metropolitan “L”
04. The Northwestern “L”
05. The Union Loop
06. Lost Equipment
07. Lost Interurbans
08. Lost Terminals
09. Lost… and Found
Each copy purchased here will be signed by the author, and you will also receive a bonus facsimile of a 1926 Chicago Rapid Transit Company map, with interesting facts about the “L” on the reverse side.
The price of $23.99 includes shipping within the United States.
For Shipping to US Addresses:
For Shipping to Canada:
For Shipping Elsewhere:
NEW DVD:
A Tribute to the North Shore Line
To commemorate the 50th anniversary of the demise of the fabled North Shore Line interurban in January 2013, Jeffrey L. Wien and Bradley Criss made a very thorough and professional video presentation, covering the entire route between Chicago and Milwaukee and then some. Sadly, both men are gone now, but their work remains, making this video a tribute to them, as much as it is a tribute to the Chicago North Shore & Milwaukee.
Jeff drew on his own vast collections of movie films, both his own and others such as the late William C. Hoffman, wrote and gave the narration. Bradley acted as video editor, and added authentic sound effects from archival recordings of the North Shore Line.
It was always Jeff’s intention to make this video available to the public, but unfortunately, this did not happen in his lifetime. Now, as the caretakers of Jeff’s railfan legacy, we are proud to offer this excellent two-hour program to you for the first time. The result is a fitting tribute to what Jeff called his “Perpetual Adoration,” which was the name of a stop on the interurban.
Jeff was a wholehearted supporter of our activities, and the proceeds from the sale of this disc will help defray some of the expenses of keeping the Trolley Dodger web site going.
Total time – 121:22
# of Discs – 1
Price: $19.99 (Includes shipping within the United States)
Help Support The Trolley Dodger
This is our 286th post, and we are gradually creating a body of work and an online resource for the benefit of all railfans, everywhere. To date, we have received over 861,000 page views, for which we are very grateful.
You can help us continue our original transit research by checking out the fine products in our Online Store.
As we have said before, “If you buy here, we will be here.”
We thank you for your support.
DONATIONS
In order to continue giving you the kinds of historic railroad images that you have come to expect from The Trolley Dodger, we need your help and support. It costs money to maintain this website, and to do the sort of historic research that is our specialty.
Your financial contributions help make this web site better, and are greatly appreciated.




















































































































